西安仪表厂

  • 返回首页
  • 收藏本站
  • 网站地图
  • 联系我们
联系电话:029-84381734
  • 网站首页
  • 关于我们
  • 产品中心
  • 压力仪表
  • 压力变送器
  • 活塞压力计
  • 联系方式

压力仪表

  • 弹簧管压力表
  • 精密压力表
  • 全不锈钢压力表
  • 耐震压力表
  • 隔膜压力表
  • 电接点压力表
  • 膜盒压力表
  • 膜片压力表
  • 氨用压力表
  • 远传压力表
  • 不锈钢差压表

压力表

压力变送器

活塞压力计

电子控制系统

气动仪表

温度仪表

智能数显仪表

热电阻

B系列压力/温度开关

手操器

积算器

给定器

安全栅

安全保持器

温度调节器

产品配件

当前位置: 主页 > 产品中心 > 智能数显仪表 > XXS-10,XXS-12闪光报警器

西安仪表厂产品

XXS-10,XXS-12闪光报警器

仪器名称:XXS-10,XXS-12闪光报警器
市场价格: 洽谈
仪器类别: 智能数显仪表
咨询电话: 029-84381734 传真:88623902转810
西安仪表厂 西安仪表厂 西安仪表厂 西安仪表厂
::产品简介::

XXS-10,XXS-12闪光报警器
 

一、概述

XXS—10、12型闪光信号报警器是一种8通道声光报警器, 它能对8路输入的接点信号作出响应,有报警、记忆和指示式越限通道的功能,与XXS—01、02闪光信号报警器相比,除采用更*的COMS集成电路外还增加断续声报警和首次报警通道指示等功能。

二、主要技术参数

l         使用条件: 环境温度  0~50℃

              相对湿度  ≤90%

              大气压力  85~106Kpa

l         供电电源电压:220VAC±10%,50Hz±5% 。

l         输入信号:常开或常闭式接点。

l         输入信号点数:8点。

l         报警音响:音响器可用220VAC8W电铃或DDJ、DDZ系列电笛。

l         工作环境:温度:0~50℃ ;相对湿度:≤85%。

l         功耗:<15W( 不包括音响器 )。

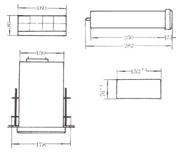
l         外形尺寸:160×80×250mm(宽×高×深)。

l         开孔尺寸:152+1×76+1mm(宽×高)。

 

三、功能

1、报警器工作状态

 

2、报警器在使用时除接入输入信号和电源外,还可根据系统要求,与外部公用功能按钮相连接即为动试 、确认 、试灯三只功能按钮。

3、音响器发声可在连续和断续发声二种工作状态中任意选择。

4、有首次报警指示功能,能指示首先报警的通道。首次报警组合可4通道二组或8通道一组。

5、安装形式:盘装。

 

四、外形及开孔尺寸图

 

五、端子接线图

 

 

六、标准附件

 

1.安装支架      1套。

2.指示灯泡      4只。

3.保险丝0.15A   1只。

------分隔线----------------------------
  • 上一篇:XMD11520多路显示控制仪
  • 下一篇:XM10220智能数显表
网站首页 - 关于我们 - 产品中心 - 压力仪表 - 压力变送器 - 活塞压力计 - 联系方式

Copyright © 2002-2011 西安仪表厂 电话:029-84381734 陕ICP备08002128号-3